Harry Wainwright

Harry Wainwright

Major Project - High Tide

As part of my major I had to do a speculative project and design sets for a soap opera set in the fictional coastal village of Kilfarhnam. Being from the small coastal village of Ballyvaughan, I took inspiration from the area I grew up in. In Ireland some of the busiest areas for tourism is on the coast which brings a lot of business to hospitality in small towns. This is why I chose to focus on designing sets to represent the small businesses that are the key parts of coastal villages. Set in the present day along the coast of North Clare, I designed a cozy old fashioned pub called McNamara's, an attached living space belonging to the pub owner's family and a small fishing boat docked at the pier that has been converted into a coffee shop.

Render of McNamara's Pub exterior, High Tide Speculative Project
VRay Render of McNamara's Pub exterior, "High Tide" Speculative Project
Interior of McNamara's Pub, render for soap opera speculative project
VRay Render of McNamara's Pub interior, "High Tide" Speculative Project
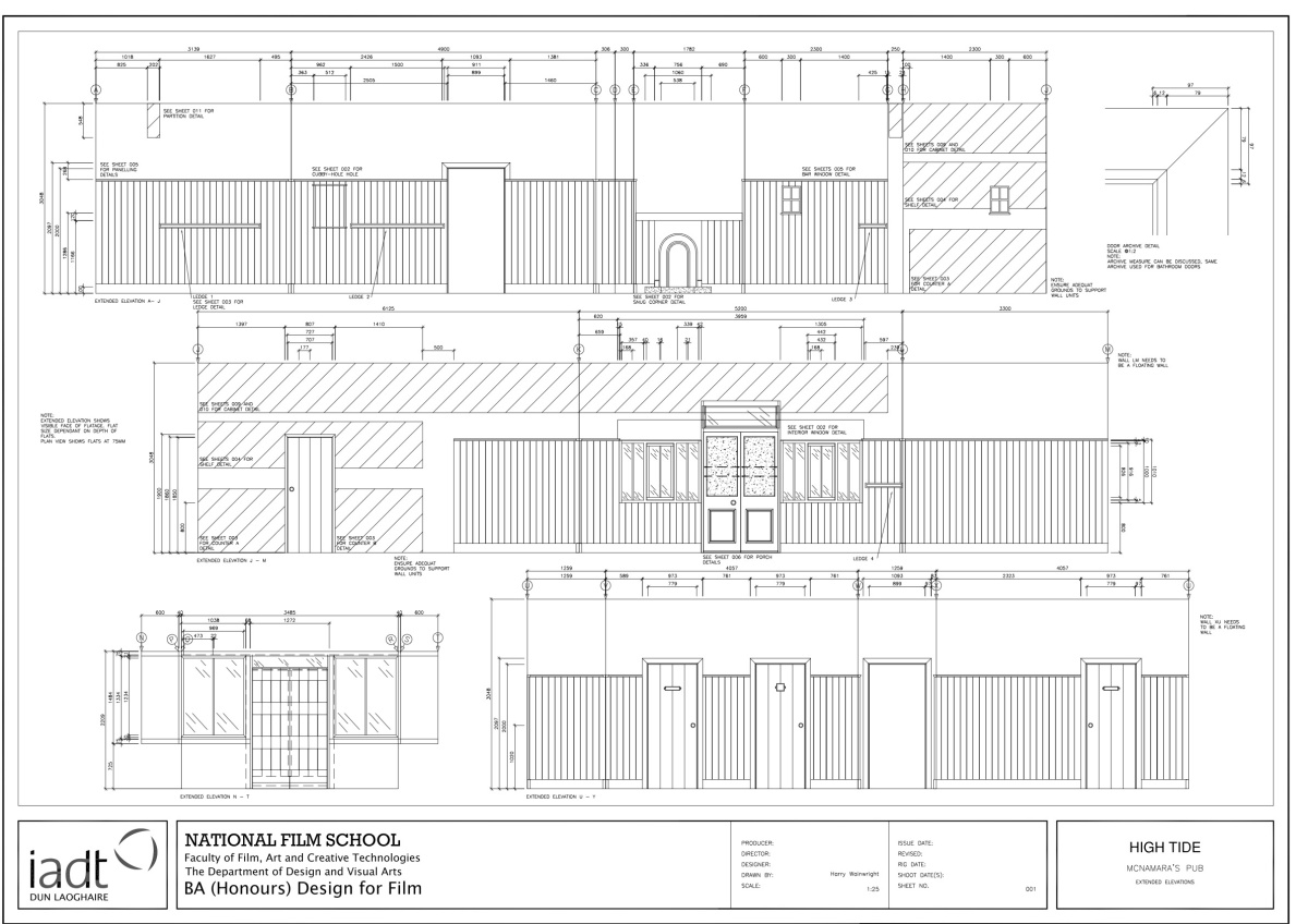
AutoCad Drawing - Extended Elevation of McNamara's Pub Set
AutoCad Drawing - Extended Elevation of McNamara's Pub Set
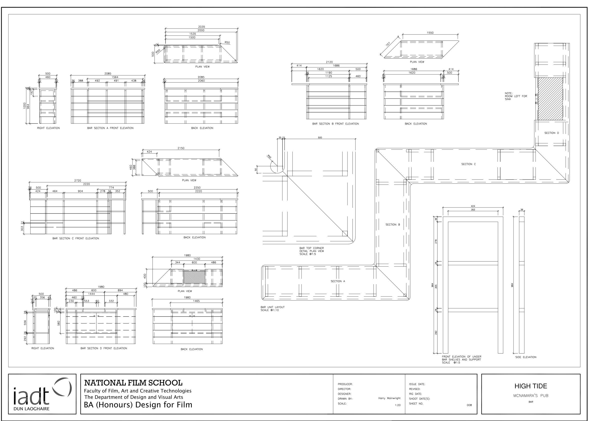
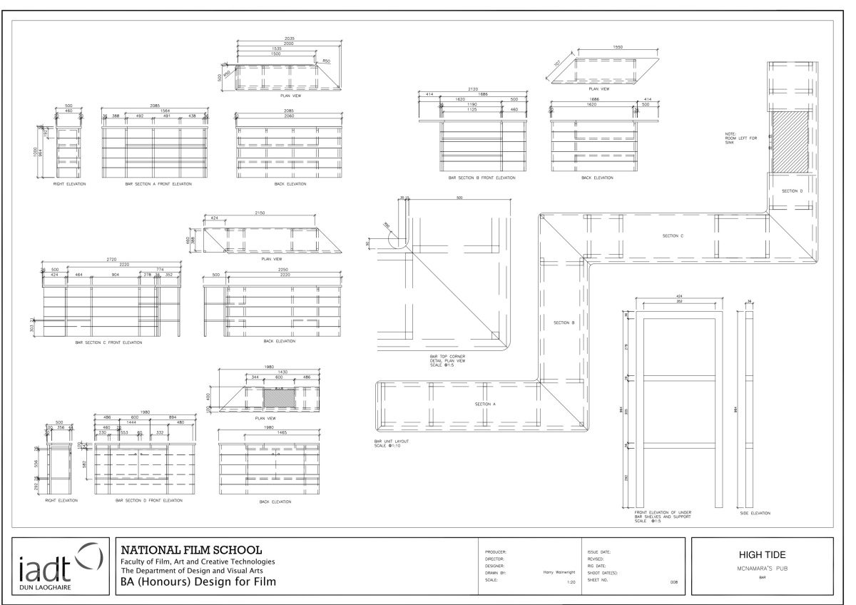
AutoCad Construction drawing of bar counter and shelfs
AutoCad Construction drawing of bar unit
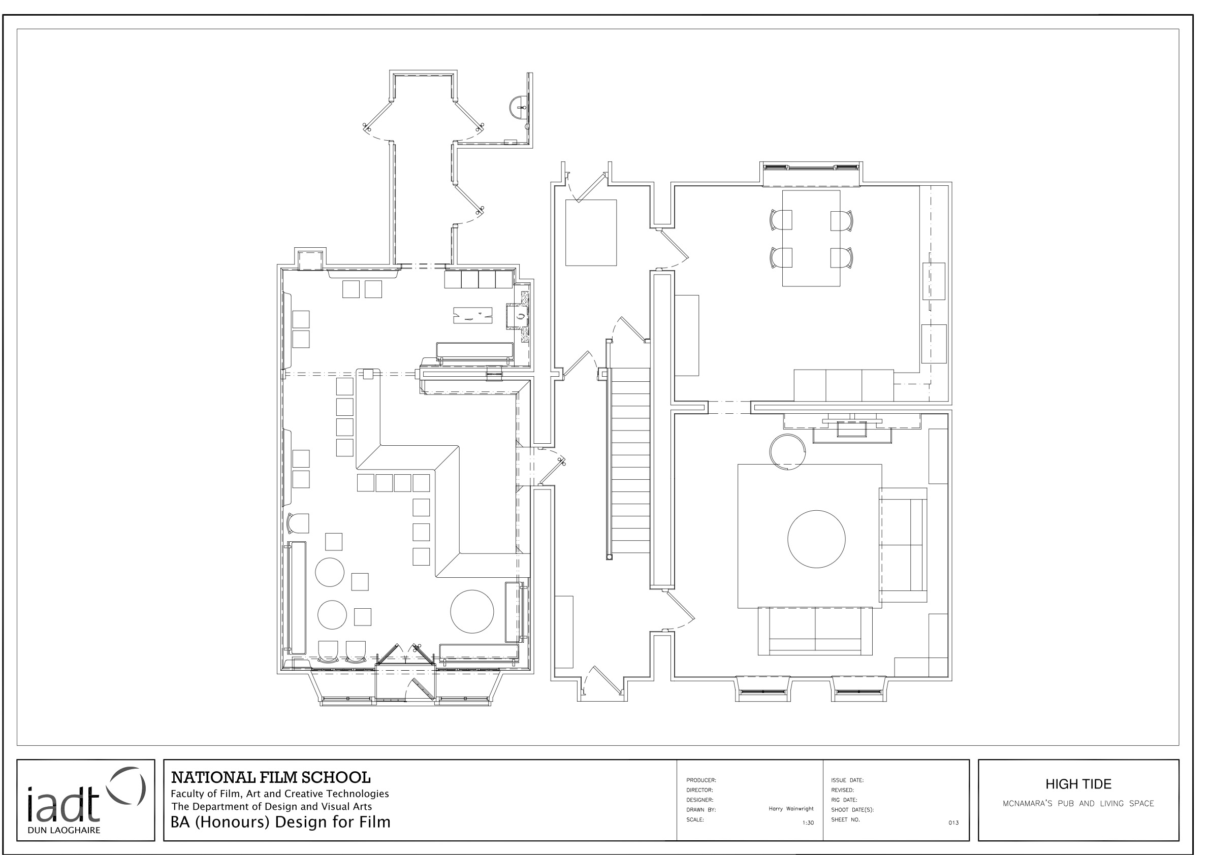
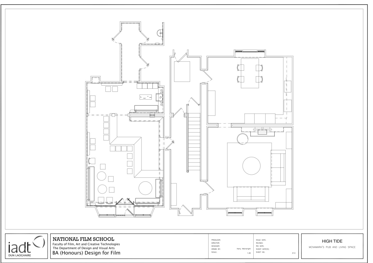
AutoCad Plan of McNamara's Pub and Living Space - High Tide Speculative Project
AutoCad floor plan of McNamara's Pub and Living Space, "High Tide" Speculative Project
High Tide Coffee Boat - Speculative Project
VRay Render of High Tide Coffee Boat - Speculative Project
An isolated 1950's Telephone Box - Minor Realised Project - "Ascension"
An isolated 1950's Telephone Box - "Ascension" Minor Realised Project
Set photo of telephone box ; Ascension Shoot
Minor Project - Ascension
White Card Scale Model of Ascension Set
White Card Scale Model of Ascension Set
Aislin's Living Room - "Chirper" Grad Film
Still of Aislin's Living Room - Chirper (2025)
Aislin's Living Room - "Chirper" Grad Film
Aislin's Living Room - Chirper (2025) - Grad Film
Thesis: The Monster's Lair: Gendered Sets in True Crime Dramas

True crime dramas have become a rising genre of film and television in recent years.
When retelling these stories, they are often told from the point of view of the
character who commits the crime as opposed to the victim, giving the audience an
insight into the mind and experiences of the perpetrators often referred to as
“monsters”. A common aspect of a monster’s story is their lair, a physical landscape to explore and reflect their psychological and emotional state, giving a deeper understanding of the character to the audience.
Netflix’s Dahmer – Monster; The Jeffrey Dahmer Story (2022) and HBO’s Love and
Death (2023) are two of the most recent true crime adaptations where both main characters were considered to be monsters. The production design of these shows and the monsters’ lairs plays a part in expressing their differences, but also their similarities. The idea that their true self is expressed through these settings is clear from the actions that take place within their ‘lairs’. The tactics and reasoning behind their actions can be seen as a reflection of monsters in folklore and history.
The aim of this thesis is to understand if the recreation of horrific events on screen can make us question, as a society, how we define a monster and how the production design and habitus play a part in how it is depicted on screen.

Harry Wainwright
Harry Wainwright
BA (Hons) Design for Film

Harry has recently finished his fourth and final year of Production Design for Film (BA). He is from The Burren in Co. Clare, and its unique scenery inspires him throughout his creative process. He has spent the last four years learning skills in AutoCAD, SketchUp and making white card models, and has gained valuable experience working on projects associated with the NFS. At the start of 2025 he was head Production Designer on the Grad Film “Chirper”. As head of production design, he was responsible for scouting locations, prop sourcing and handling the art department budget. He worked closely with the other department heads to assure the director’s and producer’s vision for the film was brought to life.

BA (Hons) Design for Film